高速PCB设计系列基础知识18 | 识别结构图中的标识说明
作者: 来源: 浏览次数: 日期:2017-3-23 10:12:38
前言:结构信息的正确导入,是PCB设计的基本要求,保证后续PCBA加工装配的正确性。结构信息导入到PCB设计软件前,需要保证结构要素图文件为最新版本。
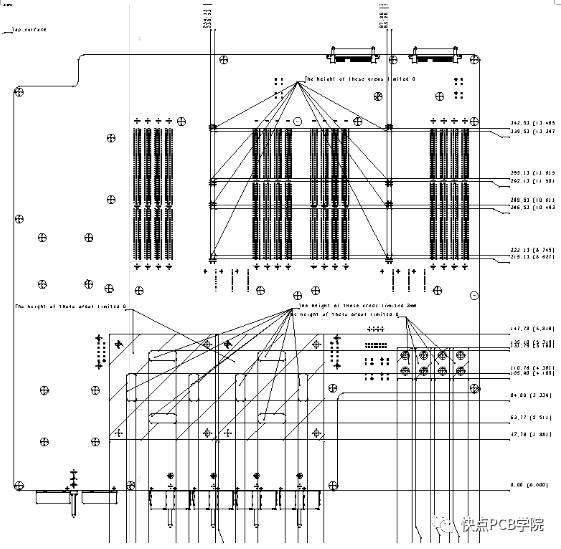
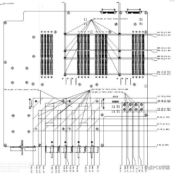
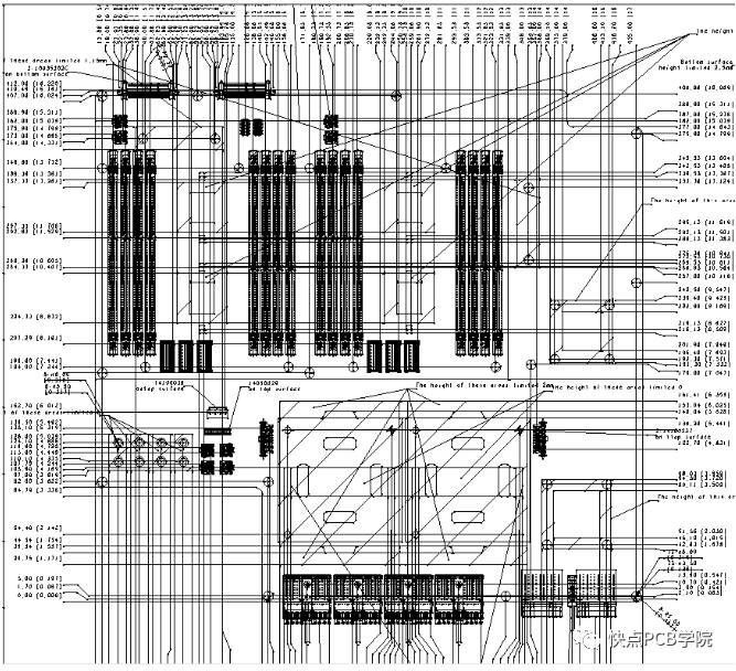
导入PCB里面的结构要素图一般有三种视图:分别是正视图、侧视图和后视图。
正视图:一般标有PCB的长宽尺寸、每个结构器件的坐标、正面器件限高、禁布区等,以不同形状阴影区文字说明:



下期介绍预告:
结构要素图如何导入PCB设计软件
请同学们持续关注【快点PCB学院】公众号